Am 14. August 1993 überreichte Bürgermeister Gentsch nach einer 4jährigen Planungs- und Bauphase dem Heimatverein Oberkochen den Schlüssel zu den von der Stadt renovierten Räumen im 1. OG des Schillerhauses, in welchem das Oberkochener Heimatmuseum eingerichtet werden wird.
Ab diesem Zeitpunkt machten sich ca. 10 HVO-Mitglieder unter der Leitung von Martin Gold/Bar sofort daran die Bühne des städtischen Gebäudes auf Vordermann zu bringen. Der 130 Jahre alte Bretterboden war unbrauchbar, der Verputz und das Mauerwerk bröselten aus den Gefachen der Wände.
Diese Arbeiten stehen nunmehr kurz vor dem Abschluß. Nebenher war eine andere HVO-Gruppe damit beschäftigt, die Inneneinrichtung des Museums zu planen. Der aktuelle Stand ist, daß eine Ausstattung mit Ganzglasvitrinen aus Kostengründen wohl nicht mehr im Bereich des Möglichen steht. Ganzglasvitrinen gibt es praktisch nur in städtischen oder anderen öffentlichen Museen, deren Inneneinrichtung nicht vereinsintern bezahlt werden mußte. Selbst Vitrinen mit Aluprofilrahmen sind noch so teuer, daß es dem HVO nicht möglich sein wird, das ganze Museum in einem Zug mit den benötigten Vitrinen auszustatten.
Im folgenden soll beschrieben werden, wie die Museumsgestaltung seitens des HVO vorgesehen ist.
Das Schillerhaus funktioniert nach dem Prinzip von 2 getrennten Kreisläufen. Während die Begegnungsstätte von der Aalener Straße aus betreten wird, wird der Museumsbereich von der rückwärtigen Seite des Gebäudes erschlossen. Über das Treppenhaus gelangt man ins 1. OG.

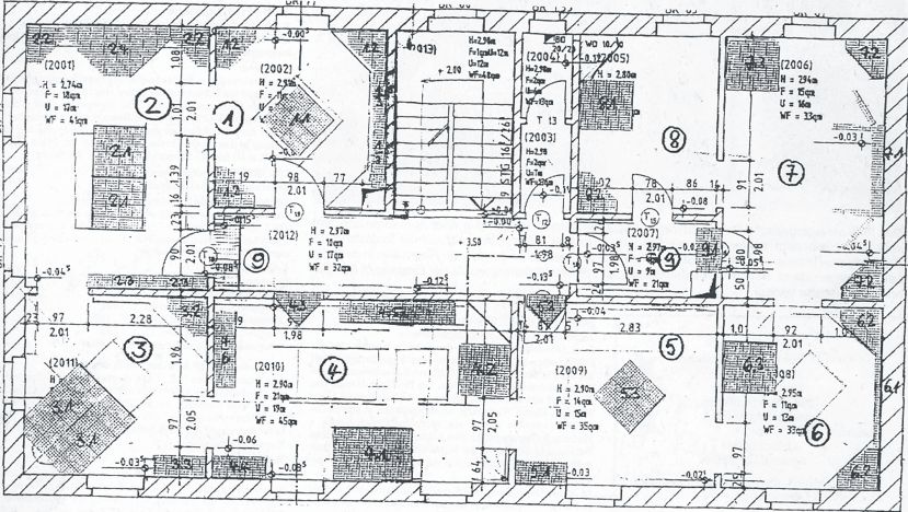
Aus dem Grundriß, der den derzeitigen und keineswegs verbindlichen Stand der Planungen zeigt, ist ersichtlich, daß die zur Verfügung stehenden 8, zum Teil ziemlich kleinen Räume in einem Rundgang (Raum 1–8) erschlossen werden. Diesem Rundgang entspricht die chronologische Darstellung der Geschichte Oberkochens. (Eben diese 8 Räume bildeten früher die Lehrerwohnung des Gebäudes, das 1860 bekanntlich als evangelisches Schulgebäude errichtet worden war.)
Rundgang
Raum 1
Urgeschichte, Geologie des Oberkochener Raums, Karstversteinerungen (vorwiegend aus unserem Raum) aus Privatbesitz und aus einer Sammlung, die in städtischem Besitz ist.
Raum 2
Vor- und Frühgeschichte, Oberkochener Höhlen
Steinzeit (steinzeitliches Werkzeug), steinzeitliche Bohrerwerkstatt
Hallstattzeit, Kelten, La-Téne-Zeit
Dokumentation des Oberkochener »Römerkellers« (Grabung 1971)
Raum 3
Mittelalter
Dokumentation der Alamannengrabung 1980 u. a.
Grab 44 (männlich), Grab 79 (weiblich) mit sämtlichen Grabbeigaben (Leihgabe des Württembergischen Landesmuseums)
Weitere Funde aus Privatbesitz
Raum 4
Vom 30jährigen Krieg ins 19. Jahrhundert
Köhlereiwesen — Modell der Großköhlerei »Wanne«
Hochofen, Schlackenwasche
Bilz und Bilzhannes
Das geteilte Dorf (Kloster Ellwangen, Kloster Königsbronn)
Raum 5
Häfnereiwesen
Schnitt durch ein Brennofenmodell
Glasurenreibe, alte Töpferscheibe
Alt-Oberkochener Häfnergeschirr
Raum 6
Wasserkraft und Mühlen
Bohrermacherhandwerk
Frühindustrialisierung
Historische Holzbearbeitungswerkzeuge
Raum 7
Industrialisierung
Oberkochen bis zum und im 2. Weltkrieg
Raum 8
Oberkochen nach dem 2. Weltkrieg bis zur Stadterhebung
Bühnenraum
Oberkochener Alltag früher
Land‑, Wald- und Forstwirtschaft
Wechselausstellungen
Eine alte Schmiede wird ebenfalls im Museumsbereich untergebracht werden.
Wir möchten an dieser Stelle alle Oberkochener Bürger, die am Entstehen eines Oberkochener Heimatmuseums interessiert sind, und die uns oder unserer Stadt verbunden sind, sehr herzlich bitten, den Heimatverein durch eine Geldspende, die zur Beschaffung von Vitrinen eingesetzt wird, zu unterstützen — wir wissen, daß wir mit unserem Anliegen in eine äußerst ungünstige Zeit geraten sind — umsomehr erhoffen wir uns Ihre Hilfe. Die Stadt sieht zur Zeit noch keine Möglichkeit, uns entscheidend zu unterstützen.
Wenn eine Spendenquittung gewünscht wird, muß die Einzahlung der Spende über die Stadtkasse Oberkochen laufen:
VR-Bank Aalen, Kto. 50 303 007 — BLZ 614 901 50 Verwendungszweck: »Spende für Heimatverein«
Wenn keine Spendenquittung benötigt wird, kann eine Spende auch direkt auf das Konto des Heimatvereins überwiesen werden:
VR-Bank Aalen, Kto. 50 660 004 — BLZ 614 901 50 Verwendungszweck: »Spende für Heimatverein«
Dietrich Bantel
